Inland Valley Recovery Services Youth Facility - image

Inland Valley Recovery Services Youth Facility

Grant-Funded Temporary Housing Transformed into Healing-Centered Community

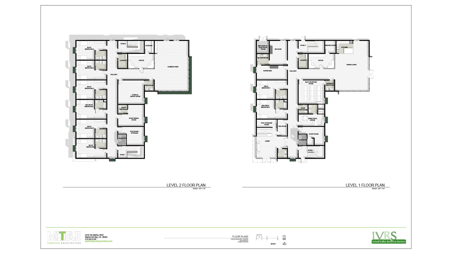
Architecture and design services creating a 16-bed residential facility for youth clients requiring comprehensive support services within temporary housing. The project integrates sleeping quarters, dining and living spaces, medical facilities, and counseling and educational areas into a thoughtfully designed two-story space that prioritizes psychological well-being through connection to nature and community.

The Challenge

How do you create a therapeutic residential environment addressing complex psychological needs for vulnerable youth within strict budget limitations? The IVRS project presented multiple interconnected challenges requiring sensitive and strategic design thinking:

  • Grant Funding Constraints: Fixed budget from awarded grant funding required delivering a comprehensive 16-bed facility with all necessary support spaces within predetermined financial limits.
  • Complex Programming Requirements: The facility needed to accommodate a wide range of functions including sleeping quarters, dining and living areas, medical and nursing space, on-site offices, and private psychological counseling and group education sessions.
  • Site Integration: The new building had to fit appropriately within the existing campus’ surrounding buildings while maximizing its footprint, orientation, and spatial effectiveness.
  • Psychological Sensitivity: New residents arrive with delicate psychological, behavioral and recovery challenges, requiring spaces that support healing through meaningful connections to nature, campus community, and staff in productive, supportive ways.
  • Operational Efficiency: The design needed to balance therapeutic goals with practical operational requirements including security, safety, and staff workflow efficiency

The Approach

Rather than simply executing a predetermined plan, we reimagined the entire project through the lens of nurturing therapeutic environments and trauma-informed design. Our approach centered on optimizing spatial relationships, building orientation, and indoor-outdoor connections to create healing spaces within budget constraints.

Collaborative Foundation

We began by studying the conceptual plans that had supported the initial grant application, coming to an understanding of the programmatic thinking that informed those early ideas. This foundation allowed us to honor the original vision while bringing fresh perspective to site analysis, building orientation, and spatial organization.

L-Shaped Therapeutic Design

We developed a two-story L-shaped building that strategically frames two sides of an outdoor courtyard, creating a protected therapeutic space at the heart of the facility. This courtyard serves as a recreation, play, and relaxation area while establishing visual connections to the deeper, more natural areas of the site. The building's form organically defines outdoor space while creating the passive security necessary for safe operations.

Thoughtful Spatial Organization

We reorganized sleeping spaces and carefully considered adjacencies and vertical stacking — determining which functions belonged on the first floor versus second floor. This strategic arrangement optimizes both therapeutic benefit and operational efficiency, ensuring that spaces support the psychological needs of residents while enabling effective staff supervision and care delivery.

Inland Valley Recovery Services Youth Facility image

Climate-Responsive Simplicity

Given the extreme heat of the Upland location, we employed a straightforward but effective strategy of exterior solar shades on all windows. This cost-effective design solution keeps the building comfortable while maintaining the project within grant funding limits, proving that sustainable design need not be expensive.

Balanced Spatial Character

The design creates varied environments appropriate to different needs: lively where energy and interaction are beneficial, calming where peace supports healing, safe throughout, and comfortable in all spaces. This nuanced approach recognizes that therapeutic environments must support different emotional states and activities throughout the day.


The Impact

While the project is currently under construction with full impact yet to be experienced, early indicators demonstrate the strength of the design solution and its potential to serve as a model for similar facilities.

Inland Valley Recovery Services Youth Facility image

Client and Operational Success

Strong Internal Validation: IVRS staff have expressed confidence that the design represents an excellent solution to their multidimensional programmatic and therapeutic needs, and were delighted by the collaborative design process.

Model for Replication: The project's success has led to invitations for us to consult with other youth recovery agencies on their facilities, indicating the potential as a template for similar therapeutic environments.

Budget Achievement: All required programmatic elements are embodied in this comprehensive facility, while remaining within grant funding constraints. Therapeutic excellence need not require enormous budgets.

Therapeutic Environment Creation

Nature Connection: Biophilic design principles including the L-shaped configuration and courtyard design ensure residents maintain meaningful visual and physical connections to the surrounding natural landscapes and seasonal harmonies.

Campus Community Integration: Strategic building orientation and circulation patterns facilitate meaningful and productive connections with others on the IVRS campus while maintaining appropriate privacy and security.

Spatial Variety: The building’s healing-centered design provides diverse environments that support different needs — from active recreation to quiet reflection — to serve and support the complex emotional landscape of youth in recovery.

Operational Excellence

Intuitive Security: The building's L-shaped form creates natural surveillance and passive security measures that engender safety without inflicting an institutional feeling, balancing protection with dignity.

Inland Valley Recovery Services Youth Facility image

Staff Efficiency: Thoughtful spatial organization enables effective care delivery and supervision while providing comfortable and appropriate space for the staff’s operational requirements.

Sustainable Comfort: Climate-responsive design strategies ensure comfortable interior environments — even in extreme heat — while maintaining cost-effectiveness and energy efficiency.

The IVRS plans demonstrate that healing-centered design is achievable through thoughtful planning rather than expensive materials or systems.


The most nurturing environments emerge when we design with deep understanding of human psychological needs and genuine respect for the people who will inhabit the place we create, while keeping them connected to (and protecting) the planet.

Inland Valley Recovery Services Youth Facility image